πέντε τρύπες όλες κι όλες.
μελέτη study
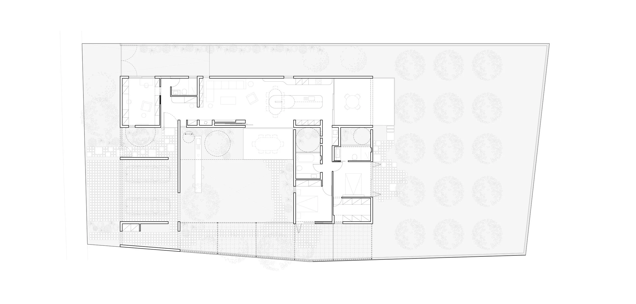
εμβαδόν τεμαχίου: 839τ.μ. plot area: 839 sq.m.
εμβαδόν κτηρίου: 152τ.μ. building area: 152 sq.m.
2024
μελέτη study
εμβαδόν τεμαχίου: 839τ.μ. plot area: 839 sq.m.
εμβαδόν κτηρίου: 152τ.μ. building area: 152 sq.m.
2024